Autres produits
Télécharger le plan technique

éO 3 points barre de manoeuvre Serrure antipanique 3 pts

L'éO 3 points est une barre de manoeuvre pour issue de secours. Elle offre une évacuation rapide et sure en cas d'urgence.
Sa conception et son degré coupe-feu garantie performance et durabilité
Idéal pour les portes 1 vantail ou les portes 2 vantaux associé à 1 barre 2 points ou crémone pompier

Télécharger la fiche produit

Avantages produit

  • La Gamme éO répond aux plus hautes exigences. Elle est certifiée suivant la norme européenne EN 1125:2008
  • Serrure coupe-feu de série
  • Barre antipanique réversible
  • Barre ajustable suivant la largeur de la porte par simple découpe
  • Coffre étroit permettant une installation sur tous types de portes
  • Design contemporain et élégant
Certification EN 1125
Certification Ignifuge

Utilisations suggérées

Education, Aéroports, Etablissements financiers, Hôpitaux, Hôtels, Sites industriels, Moyennes et grandes entreprises, Bureaux, Etablissements recevant du public, Petites et moyennes entreprises

Spécifications

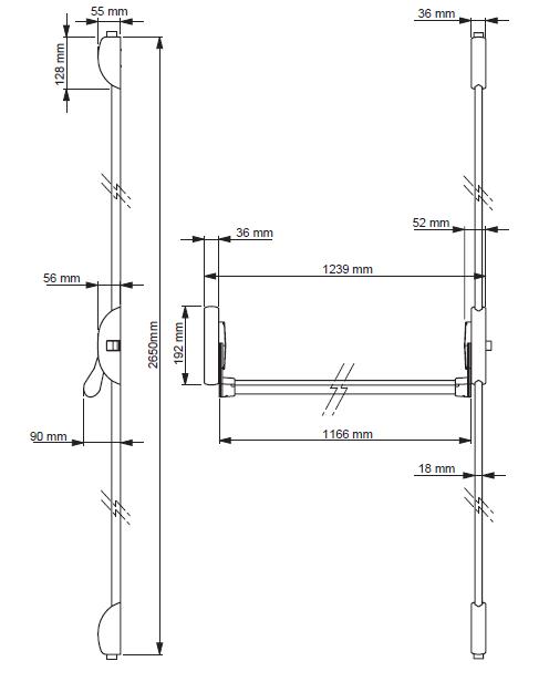
Caractéristiques techniques

Résistance au feuOui
Nombre de points de fermeture3
Commande de FermetureMécanique
Type d'anti-paniqueCross-bar
Configuration de la portePorte 1 vantail, Porte à double vantaux : ouvrant de service ou semi-fixe
Garantie1 an

Classification EN 1125:2008377B1422AA

Longueur du produit (mm)36
Hauteur du produit (mm)192
Longueurs de barres disponibles (mm)1150
Finition standard des capotsTon alu RAL 9006
MainRéversible
Position du demi tourhaut, bas et latéral
Matière du pêne demi-tourAcier
Dimension du carré (mm)8
Type de gâcheRéglable

Accessoires optionnels

Manoeuvre extérieure à bouton et cylindre européen!

Manoeuvre extérieure à bouton et cylindre européen!

Manoeuvre extérieure mécanique à bouton et cylindre européen.
Manoeuvre extérieure à béquille et cylindre européen

Manoeuvre extérieure à béquille et cylindre européen

Manœuvre extérieure mécanique à béquille et cylindre européen.
Manoeuvre extérieure à poignée rotative et cylindre européen.

Le demi-cylindre européen 30/10 est à commander séparément.

Manoeuvre extérieure à poignée rotative et cylindre européen. Le demi-cylindre européen 30/10 est à commander séparément.

Manoeuvre extérieure mécanique à poignée rotative et cylindre européen.

Dény Security

Siège social

+33 (0)3 22 30 26 01

Route de Saint Valéry
CS 60001
80960 Saint-Blimont
FRANCE